Evolution | Interior Tenant Improvement
Description
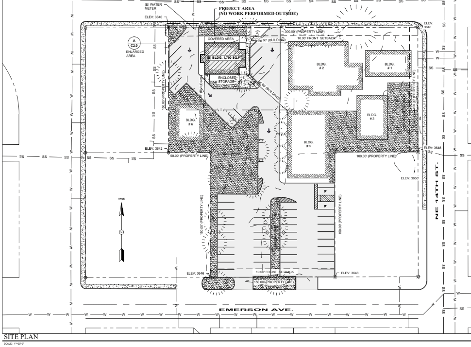
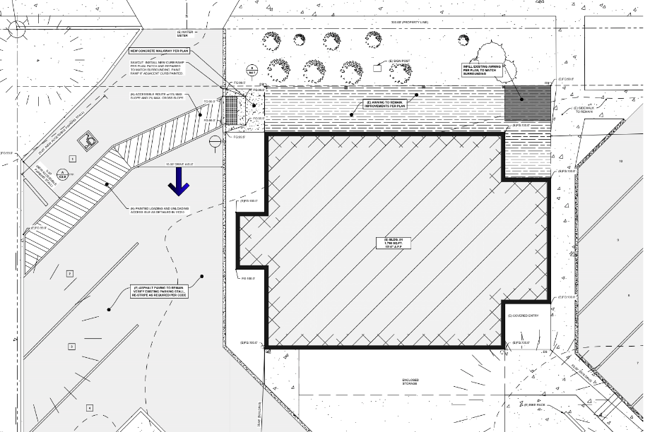
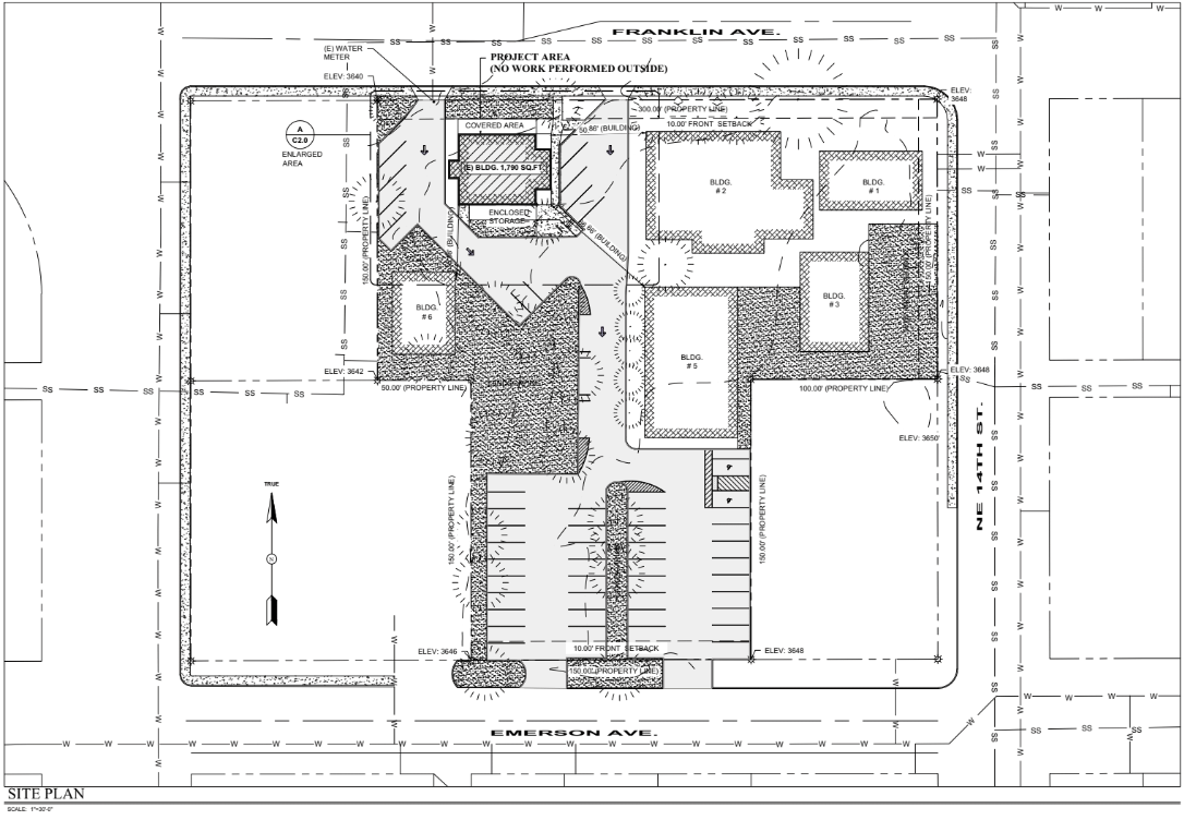
For this project, we undertook a comprehensive interior tenant improvement of an existing commercial building, enhancing both its functionality and accessibility. Our scope of work included a series of critical updates and improvements to ensure the building meets current standards and provides a safe, welcoming environment for all users.
Scope of Work:
- Interior Tenant Improvement: We transformed the interior space to better serve the tenant’s needs, optimizing the layout for functionality and aesthetic appeal.
- Parking Updates: Our team revamped the existing parking area, ensuring it meets modern standards and provides ample, efficient parking for visitors and staff.
- ADA Compliance: Enhancing accessibility, we updated various features to comply with ADA regulations, making the building more inclusive and user-friendly.
- Sidewalk Replacement: We removed and replaced the outdated sidewalk, improving safety and aesthetics while ensuring compliance with current regulations.
- Security Map: Implementing a detailed security map, we enhanced the overall safety and security of the building, providing peace of mind for tenants and visitors.
- Permitting: We handled all necessary permitting processes, ensuring the project adhered to local regulations and standards from start to finish.
Project Impact:
- Enhanced Functionality: The interior improvements provided a more efficient and attractive space for the tenant, boosting productivity and satisfaction.
- Improved Accessibility: Updates to ADA compliance ensured the building is accessible to all, reflecting a commitment to inclusivity.
- Increased Safety: New sidewalks and a comprehensive security map significantly improved the safety and usability of the property.
- Regulatory Compliance: Our meticulous approach to permitting and compliance ensured the project met all legal requirements, preventing future issues.
This project highlights our ability to deliver comprehensive, high-quality improvements that address both the interior and exterior needs of commercial properties. Explore our portfolio to see more examples of our work and discover how we can transform your space.



